アパート
「利回り」は、当該不動産の1年間の予定賃料収入の不動産取得対価に対する割合であり、公租公課その他当該物件を維持するために必要な費用の控除前のものです。
また、予定賃料収入が確実に得られる事を保証するものではありません。

こだわりで選びたい方におすすめ。郡山市エリアで住まいをお探しなら「カルム フラン」。室内設備は洗面所独立・浴室乾燥機など豊富に揃っており、過ごしやすいお部屋になっております。フローリング仕様のアパートです。TOHOピクス郡山駅東口店は快適な住まい探しを一生懸命サポートします。ご連絡は024-954-6112またはinfo@tohopicsre.comにてお待ちしております。

※地図上の物件位置は近隣に物件が所在することを表すものであり、実際の物件所在地とは異なる場合がございます。
024-954-6112
営業時間:9:00~18:00 / 定休日:毎週 水曜日
| 所在地 | 福島県郡山市大槻町字西ノ宮西 11番地7 | ||
|---|---|---|---|
| 交通 |
東北本線 「郡山」駅
バス30分 新池下団地下車 徒歩3分 東北新幹線 「郡山」駅 バス30分 新池下団地下車 徒歩3分 |
||
| 賃料 | 5.25万円 | 管理費 | 2,300円 |
| 敷金/保証金/礼金 | 0ヶ月 / - / 7.25万円 | 敷引/償却 | - / - |
| 敷金積み増し | |||
| 更新料 | 0ヶ月 | 更新事務手数料 | 2.2万円 |
| 権利金 | 雑費 | ||
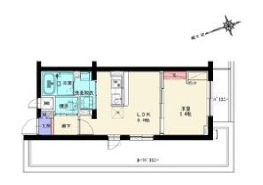
| 所在階/階数 | 2階 / 2階建 | 専有面積 | 46.09㎡ |
| 間取り |
1LDK
洋室 6.0帖 / |
||
| 主要採光面 | 南西 | 建物構造 | 木造 |
| 築年月(築年数) | 2010年 3月(築15年) | 契約期間 | |
| 総戸数 | |||
| 入居可能日 | 即時 | 現況 | 空家 |
| 取引態様 | 仲介 | 特優賃 | |
| 保険 | 保険加入義務:有、保険名:住宅保険料 | ||
| 保証会社 | 保証加入義務:必加入、保証会社名:ハウスリーブ | ||
| 駐車場 | 空き台数:1台 、 空有、月額料金:5,500円(税込) | ||
| 設備条件 | 公共下水 / 公営水道 / プロパンガス / 室内洗濯機置場 / フローリング / バルコニー / 駐輪場 / 対面式キッチン / カウンターキッチン / バス・トイレ別 / 追焚機能浴室 / 浴室乾燥機 / 温水洗浄便座 / 洗髪洗面化粧台 / シャワー / 独立洗面台 / エアコン / BS / ネット使用料無料 / TVモニタ付インターホン | ||
| その他条件 | クリーニング費用:6万円 鍵セット費:3,300円 24時間サポート費用:330円(月額) 収納手数料:170円(月額) 町内会費:400円(月額) | ||
| 備考 | 更新事務手数料 22,000円 賃料等月額を口座引落とし、クレジットカードでお支払いいただく場合は、収納手数料 170円がかかります。「24時間サポート費用 330円(月額)」が必要となります。契約時に鍵セット費3,300円(税込)が必要となります。貸主インボイス登録あり | ||
| 物件番号 | 100831826 | ||
| 情報公開日 | 2026年2月15日 | 次回更新予定日 | 2026年3月1日 |
| 取引条件の有効期限 | 2026年3月1日 | ||
| 取扱い会社 |
TOHOピクス株式会社郡山駅東口店 〒963-8811 福島県郡山市方八町2丁目3-19 福島県知事(2)第3396号 公益社団法人 福島県宅地建物取引業協会 |
||
024-954-6112
営業時間:9:00~18:00 / 定休日:毎週 水曜日
| 所在地 | 物件の住所を表示。(詳細住所は表示していない場合もある) | ||
|---|---|---|---|
| 交通 | 物件(部屋)の沿線駅・バス停を表示。(複数駅・バス停の利用が可能な場合は最大3件まで) | ||
| 間取り/詳細 | 数字は居室数を表示。LDKはそれぞれ「リビング」「ダイニング」「キッチン」、S(納戸)とは「納戸」「サービスルーム」「マルチルーム」「フリールーム」など建築基準法第28条に適合していないため、居室と認められない納戸その他の部分を表す。 | ||
| 価格 | 販売されている住戸の価格を表示。仲介手数料は含まない。 | ||
| 管理費 | 共同住宅の設備その他共用部分の維持および管理をするために必要な費用を表示。 | ||
| 修繕積立金 | 共用部分の修繕のために積立てる金額を表示。 | ||

【外観】おしゃれな外観です